No items found.
No items found.
No items found.
No items found.
Utrecht
Lucasbolwerk 15
Monumentale kantoorvilla te koop aan het Lucasbolwerk 15 te Utrecht (3512 EH).
Algemene informatie
Royaal en karakteristiek gemeentelijk monument met parkeer-gelegenheid op het eigen terrein, gelegen aan het Lucasbolwerk 15 in Utrecht. Het object is momenteel in gebruik als kantoor en wordt per december aanstaande vrij van huur opgeleverd.
Locatie
Lucasbolwerk 15 bevindt zich op een prominente locatie schuin tegenover de Stadsschouwburg en biedt uitzicht op het monumentale Zocherpark.
Het pand maakt deel uit van een reeks beeldbepalende panden aan het Lucasbolwerk, ontworpen in de periode 1873 tot 1885.
De omgeving kenmerkt zich door historische architectuur en een breed aanbod aan voorzieningen, waaronder diverse horecagelegenheden en winkels.
Bereikbaarheid
Lucasbolwerk 15 is centraal gelegen aan de rand van de Utrechtse binnenstad, direct tegenover de Stadsschouwburg.
Via de Biltstraat is de locatie uitstekend te bereiken met het eigen vervoer. Via de nabijgelegen uitvalswegen zijn de rijkswegen A27, A28 en A12 binnen circa 10 minuten te bereiken.
De bereikbaarheid met het openbaar vervoer is eveneens uitstekend. Diverse buslijnen stoppen op korte loopafstand van het object, waaronder bij de haltes Stadsschouwburg en Wittevrouwenstraat. Utrecht Centraal Station ligt op circa 15 minuten lopen.
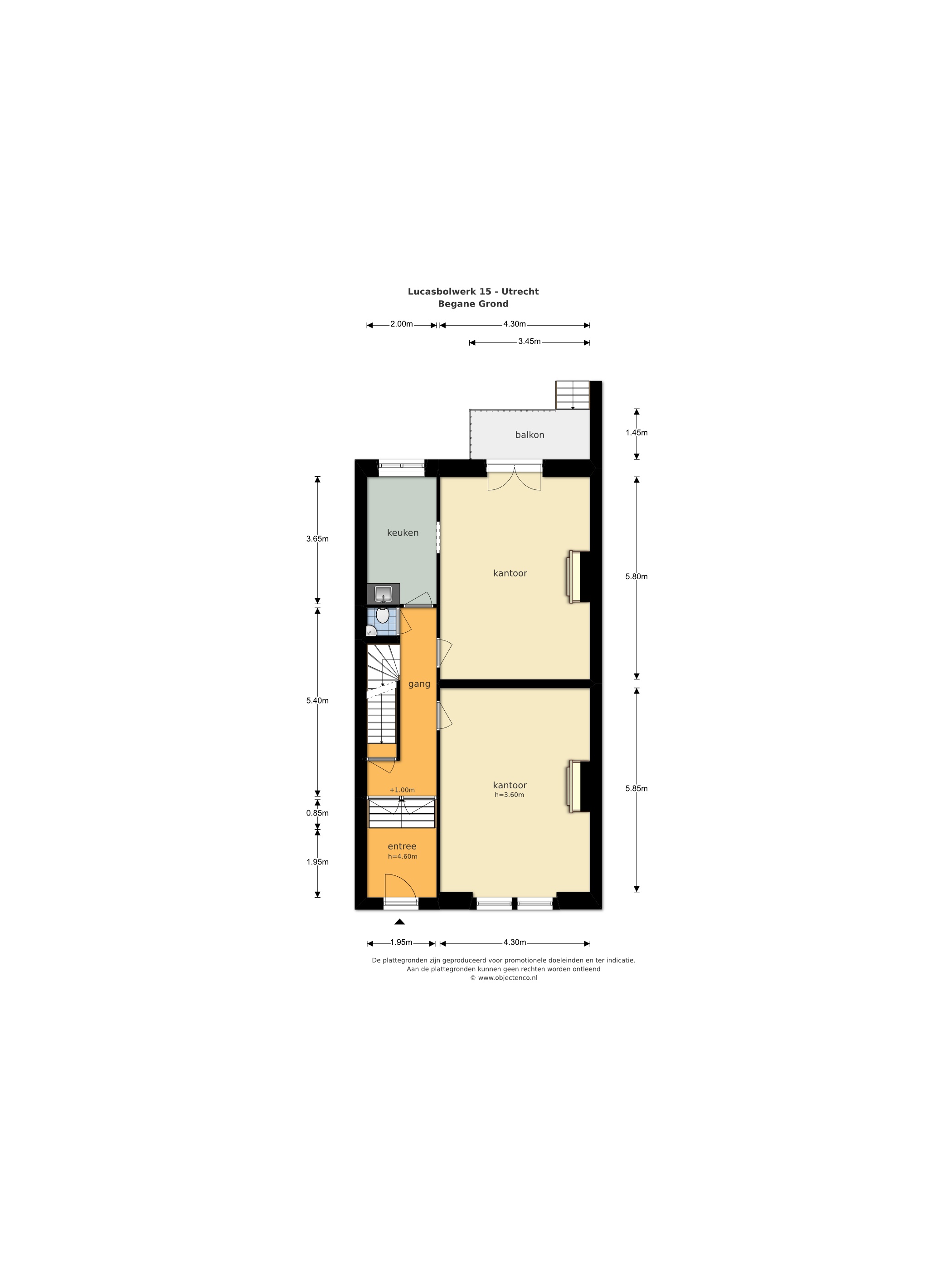
Oppervlakte
Het gehele object meet circa 349 m² VVO en is als volgt verdeeld:
- souterrain: circa 66 m²
- bel-etage: circa 72 m²
- 1e-verdieping: circa 75 m²
- 2e-verdieping: circa 75 m²
- 3e-verdieping: circa 61 m²
Bovenstaande metrages zijn ingemeten conform NEN 2580 (meetrapport aanwezig).
Parkeren
Een deel van de achtertuin is momenteel ingericht als parkeerterrein. Deze biedt ruimte voor circa 4 parkeerplaatsen.
De parkeerplaatsen zijn bereikbaar via de poort aan de Lange Jufferstraat.
In de directe omgeving geldt betaald parkeren aan de openbare weg. De parkeergarage aan de Kruisstraat is op korte loopafstand gelegen.
Kadastrale informatie
Het kadastrale kenmerk van het object aan Lucasbolwerk 15 is:
Gemeente: Utrecht
Sectie: A
Perceel: 2127
Groot: 200 m²
Het object is gesplitst in 5 appartementsrechten:
- Utrecht A 4275 A1
- Utrecht A 4275 A2
- Utrecht A 4275 A3
- Utrecht A 4275 A4
- Utrecht A 4275 A5
Opleveringsniveau en voorzieningen
Lucasbolwerk 15 betreft een monumentaal object dat nog over diverse originele details beschikt. De afgelopen jaren is het object in gebruik geweest als kantoor. De ruimtes hebben hierdoor een functioneel opleveringsniveau gekregen en dienen te worden gemoderniseerd. Per december aanstaande is het object vrij van huur.
Bestemming
Het pand is momenteel in gebruik als kantoor.
Voor het perceel geldt het bestemmingsplan “Binnenstad”. De functie van het perceel is momenteel “Gemengd-3” (artikel 11 van de planregels en verbeelding).
Voor uitgebreidere bestemmingsmogelijkheden ten aanzien van wonen, verwijzen wij naar aangehechte ‘Verklaring Bestemming en Gebruik’ welke door de Gemeente Utrecht is afgegeven.
Bouwjaar
Het pand is gebouwd omstreeks 1900.
Energielabel
Het object betreft een gemeentelijk monument. Van het object is derhalve geen energielabel beschikbaar.
Vraagprijs
€ 1.550.000,- kosten koper.
Baten en lasten
Verrekening lasten (zakelijke lasten, te weten onroerende zaak belasting, waterschapslasten, rioolrecht) voor zover het betreft eigendom van de onroerende zaak.
Overdrachtsbelasting
De overdrachtsbelasting komt voor rekening van koper. Koper zal aan verkoper uitkeren het verschil tussen enerzijds het bedrag dat aan overdrachtsbelasting verschuldigd zou zijn zonder vermindering van de heffingsgrondslag en anderzijds het werkelijk aan overdrachtsbelasting verschuldigde bedrag.
Notaris
Ter keuze aan koper.
Zekerheidsstelling
Tot meerdere zekerheid van de nakoming van zijn verplichtingen zal koper te zijner keuze een waarborgsom van 10% van de koopsom storten op rekening van of af te geven bankgarantie bij de notaris. Deze zekerheidsstelling dient binnen 1 week na verloop van de eventuele ontbindende voorwaarden te zijn afgegeven.
Levering
Verkoop en levering van het pand zal voetstoots (“as is where is”) plaatsvinden, hetgeen betekent dat de koper het object aanvaardt in onder meer de fysieke, commerciële, juridische, fiscale, technische, milieukundige en feitelijke staat waarin het zich thans bevindt, met alle bekende en onbekende, zichtbare en onzichtbare gebreken, bezwaringen, verplichtingen en
beperkingen en met het huidige feitelijke gebruik.
Aanvaarding
In overleg, doch op korte termijn mogelijk
De verkoop geschiedt onder het voorbehoud van goedkeuring en gunning door eigenaar/ verkoper.
Wwft
Ons kantoor en onze dienstverlening werkt in overeenstemming met Wwft (Wet ter voorkoming van witwassen en financieren van terrorisme). Wij zijn derhalve verplicht een cliëntonderzoek uit te voeren naar alle UBO's alvorens biedingen in behandeling te kunnen nemen. Dit betekent dat wij iedere koper dienen te identificeren en te verifiëren alsmede de herkomst van het vermogen dienen vast te stellen alvorens een onderhandeling aan te kunnen gaan.
Bij een natuurlijk persoon ontvangen wij derhalve bij een bieding graag een kopie legitimatiebewijs en een verklaring omtrent de herkomst van het vermogen. Bij een rechtspersoon ontvangen wij op voorhand graag een recent uittreksel Kamer van Koophandel, UBO verklaring, verklaring herkomst vermogen en de identiteitsbewijzen van alle UBO('s).
Voor meer informatie:
Zadelhoff Vastgoedadviseurs B.V.
Maliebaan 89
3581 CG Utrecht
info@zvga.nl
Adres
Oppervlakte
349
m²
Hoofdfunctie
Kantoorruimte
Status
Verkocht
Huurprijs / koopsom
€ 1.550.000 kosten koper
Aanvaarding
In overleg


























