No items found.
No items found.
No items found.
No items found.
Amsterdam
Herengracht 500
Adres
Herengracht 500 te Amsterdam (1017 CB)
Algemene informatie
Dit charmante grachtenpand, met een prachtige gevel, is gelegen aan de Herengracht in de beroemde Gouden Bocht, in het hart van Amsterdam. Het pand is onlangs gerenoveerd en biedt kantoorruimte op de begane grond, inclusief een keuken. De ligging is ideaal, op korte loopafstand van het Muntplein, het Rembrandtplein en de Noord-Zuidlijn. Bovendien beschikt het pand over een ruime tuin, wat een uniek kenmerk is voor deze locatie.
Voor de verhuur is circa 242,4 m² hoogwaardige kantoorruimte beschikbaar op de begane grond alsmede circa 79,6 m² kelderruimte. Te huur vanaf 40 m². De ruimtes zijn recent gerenoveerd en hebben een functionele indeling. Het kantoor beschikt over een aparte werkkamer, een pantry/lunchruimte en een open werkvloer met uitzicht op zowel de gracht als de prachtige achtergelegen tuin. Daarnaast is het pand voorzien van een douche, wat extra comfort biedt.
Locatie
In de nabijgelegen Vijzelstraat vind je een uitgebreid en gevarieerd scala aan winkels en eetgelegenheden. Een aanrader is Restaurant Buffet van Odette, bekend om zijn heerlijke gerechten. Vergeet ook niet Patisserie Holtkamp, een lokale favoriet voor ambachtelijke lekkernijen en hartige snacks. Andere bekende horeca gelegenheden op loopafstand zijn Café Heuvel, Café Bar Do en Brasserie Nel.
Bereikbaarheid
Met openbaar vervoer
Het object geniet ook van de nabijheid van de Noord-Zuidlijn, een belangrijke openbaarvervoersverbinding die op loopafstand halt houdt. Deze uitstekende verbinding biedt nog meer gemak voor medewerkers en bezoekers, waardoor het pand niet alleen centraal gelegen is, maar ook binnen enkele minuten bereikbaar vanaf Centraal Station en de Zuidas.
Met eigen vervoer
Het object is gemakkelijk bereikbaar met de auto via de Vijzelstraat. Bovendien bevindt zich naast het object de parkeergarage Prins & Keizer.
Oppervlakte
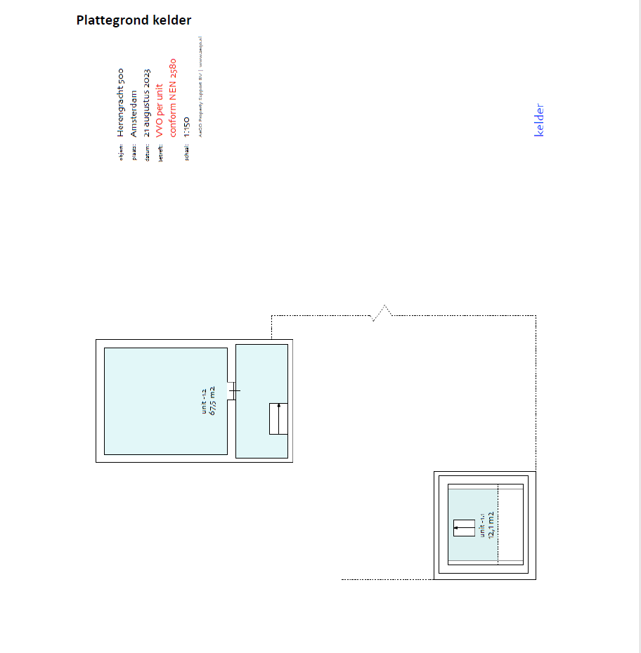
Voor de verhuur is ca. 242,4 m² v.v.o. kantoorruimte beschikbaar, verdeeld over 4 units alsmede ca. 79,6 m² v.v.o. kelderruimte verdeeld over 2 units. Te huur vanaf 40 m².
Begane grond: 242,4 m²
Kelder : 79,6 m²
De ruimten zijn conform NEN2580 inmeten.
Parkeren
Er horen geen parkeerplaatsen bij de kantoorruimte.
Aan de Prinsengracht is parkeergelegenheid in de parkeergarage Prins & Keizer. Daarnaast is het mogelijk om parkeerplaatsen te huren bij Q-Park The Bank Rembrandtplein. Dit kan op basis van een abonnement Op de openbare weg geldt betaald parkeren en parkeren middels een vergunning-systeem van de gemeente Amsterdam.
Huurprijs
Kantoorruimte
€ 395,- per m² v.v.o. te vermeerderen met BTW.
Kelderruimte (opslagruimte)
€ 150,- per m² v.v.o. te vermeerderen met BTW.
Parkeren
Parkeren op de openbare weg of in de nabijgelegen parkeergarage Prins en Keizer, tarieven zijn € 3,- per 30 minuten of € 55,- voor een hele dag.
Over de huurprijs zal btw in rekening worden gebracht. Indien btw niet in rekening kan worden gebracht, geldt een nader te bepalen opslag op bovengenoemde huurprijzen.
Opleveringsniveau en voorzieningen
De kantoorruimten worden turn-key in huidige staat opgeleverd, inclusief de volgende zaken:
Kantoorruimte hoofdgebouw:
-Parketvloer;
-Verlichting;
-Databekabeling;
-Pantry;
-Sanitaire ruimte;
-Keuken.
Het is mogelijk om de ruimte gemeubileerd op te leveren.
Energielabel
Het object is een monument en dus uitgezonderd van de energielabelverplichting.
Huurprijsaanpassing
Jaarlijks, op basis van het Consumenten Prijsindexcijfer (CPI), reeks Alle Huishoudens (2015=100); voor het eerst 1 jaar na de huuringangsdatum.
Huurtermijn
5 jaar met verlengingsperioden van telkens 5 jaar.
Betaling
Huur vermeerderd met btw per kwartaal vooruit.
Servicekosten
€ 85,- per m² v.v.o. te vermeerderen met BTW.
Zekerheidsstelling
Een bankgarantie ter grootte van 3 maanden huur vermeerderd met servicekosten en btw, welke gesteld en afgegeven dient te worden door een erkende Nederlandse bankinstelling.
Aanvaarding
Per direct
Overige voorwaarden en condities
Huurovereenkomst conform het model van de verhuurder, gebaseerd op het R.O.Z. huurovereenkomst, model 2015.
Voor meer informatie:
Zadelhoff Vastgoedadviseurs B.V.
Antonio Vivaldistraat 2
1083 HP AMSTERDAM
tel: 020 70 581 27
www.zadelhoffvastgoedadviseurs.nl
Adres
Oppervlakte
242
m²
Hoofdfunctie
Kantoorruimte
Status
Beschikbaar
Huurprijs / koopsom
€ 395 per m² per jaar
Aanvaarding
In overleg















